Sanierung Einfamilienhaus
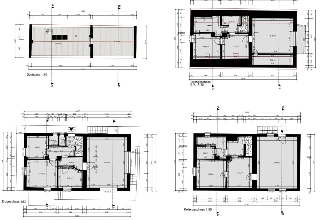
Für die geplante Sanierung eines Einfamilienhauses wurde im Auftrag des Architekturbüros Reinhard Zapf ein detailliertes Bestandsaufmaß des bestehenden Gebäudes erstellt. Das Gebäude umfasst eine Fläche von rund 275 m² und wurde vollständig vermessen, um eine verlässliche Planungsgrundlage für die weitere Sanierungsplanung zu schaffen.
Im Rahmen der Bestandsdokumentation wurden vier Grundrisse für das Keller-, Erd-, Ober- und Dachgeschoss angefertigt. Ergänzend dazu entstanden zwei Gebäudeschnitte sowie vier Ansichten, die die bestehende Gebäudestruktur vollständig abbilden.
Zusätzlich wurde eine Delta-Analyse durchgeführt, um mögliche Lotabweichungen der Fassade zu untersuchen. Dabei zeigte sich, dass die Fassade nicht vollständig im Lot steht, sondern eine leichte Neigung nach vorne aufweist.








