Basis-Dienstleistung

3D-Laserscanning & Gebäudevermessung
Mit modernsten Leica 3D-Laserscannern erfasse ich Gebäude und Bauwerke millimetergenau. Das Ergebnis sind hochpräzise 3D-Punktwolken, die als Grundlage für BIM-Modelle, Scan-to-BIM-Prozesse, digitale Zwillinge oder digitale Bestandsaufnahmen dienen. Durch das Gebäudeaufmaß entsteht eine exakte Kopie der Realität, ideal für Planung, Umbau, Sanierung oder Dokumentation.
Hinweis: Hierzu sind weitere Leistungen (Zusatz-Leistungen) empfohlen.
Zusatz-Dienstleistungen

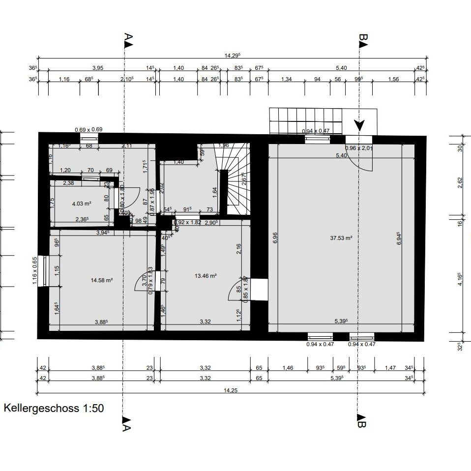
2D-Grundrisse & Bestandspläne
Aus den erfassten 3D-Laserscandaten erstelle ich hochpräzise 2D-Grundrisspläne. Diese dienen als verlässliche Basis für Architekten, Planer, Bauunternehmen und Immobilienmakler. Meine digitale Bestandsaufnahme spart Zeit, minimiert Fehler und ermöglicht exakte Wohnflächenberechnungen, digitale Dokumentation und Planungen für Umbauten, Renovierungen oder Sanierungen.
Hinweis: Hierzu ist zusätzlich ein Aufmaß (Basis-Dienstleistung) nötig

2D-Schnitte & Bestandspläne
Aus den erfassten 3D-Laserscandaten erstelle ich präzise 2D-Schnittzeichnungen des Bestandsgebäudes.
Durch die automatische Ausrichtung der Punktwolke und die exakt definierte Schnittebene wird eine korrekte Bauteilstärke und Geometrie gewährleistet. Wände, Decken und konstruktive Elemente werden verformungsgerecht ausgewertet. So entstehen verlässliche Planungsgrundlagen für Umbauten und Sanierungen.
Hinweis: Hierzu ist zusätzlich ein Aufmaß (Basis-Dienstleistung) nötig

2D-Ansichten & Bestandspläne
Auf Basis der hochauflösenden 3D-Scans generiere ich exakte 2D-Ansichten von Fassaden und Innenflächen. Proportionen, Öffnungen und Bauteilhöhen werden realitätsgetreu dargestellt. So entstehen belastbare Unterlagen für Entwurfsplanung, Fassadensanierung und behördliche Abstimmungen.
Hinweis: Hierzu ist zusätzlich ein Aufmaß (Basis-Dienstleistung) nötig

Delta-Analyse & Lot-Abweichung
Mithilfe der 3D-Punktwolke analysiere ich Lotabweichungen und Maßdifferenzen orthogonaler Wände, sowie eine Abweichung unebener Decken und Böden präzise und nachvollziehbar. Abweichungen aus der Vertikalen bzw. Horizontalen werden farblich dokumentiert und ausgewertet. Diese Analyse schafft sowohl Planungssicherheit im Bestand, als auch eine ordentliche Abnahme im Neubau.
Hinweis: Hierzu ist zusätzlich ein Aufmaß (Basis-Dienstleistung) nötig

3D-BIM-Modelle & digitaler Zwilling
Ich verwandle 3D-Punktwolken aus meinem Laserscanning in intelligente 3D-BIM-Modelle (Building Information Modeling). So erhalten Architekten, Ingenieure und Bauunternehmen eine präzise, digitale Grundlage für die Planung, Koordination und Verwaltung von Bauprojekten. Meine Scan-to-BIM-Prozesse liefern eine zukunftssichere Datenbasis, die alle relevanten Gebäudedaten bündelt und nahtlos für digitale Zwillinge, Dokumentation, Umbauten, Renovierungen oder Sanierungen genutzt werden kann.
Hinweis: Hierzu ist zusätzlich ein Aufmaß (Basis-Dienstleistung) nötig

Wohnflächenberechnung WoFIV
Ich erstelle präzise Wohnflächenberechnungen nach WoFIV. Bauherren und Immobilienentwickler erhalten maßstabsgerechte, normkonforme Flächenübersichten, die für Mietverträge, Kaufentscheidungen und Projektabstimmungen genutzt werden können. Dazu erhalten Sie ein offizielles Zertifikat für jede Berechnung mit einem Firmenstempel.
Hinweis: Hierzu ist zusätzlich ein Aufmaß (Basis-Dienstleistung) und ein Grundriss nötig
