Sanierung eines Mehrfamilienhaus
Im Rahmen eines Projekts wurde ein komplettes Mehrfamilienhaus mit drei Stockwerken, rund 250 m² Fläche und insgesamt 23 Räumen innerhalb von nur drei Stunden vollständig vermessen. Die Umsetzung erfolgte in Zusammenarbeit mit dem Auftraggeber, einem handwerklich versierten Privatkunden.
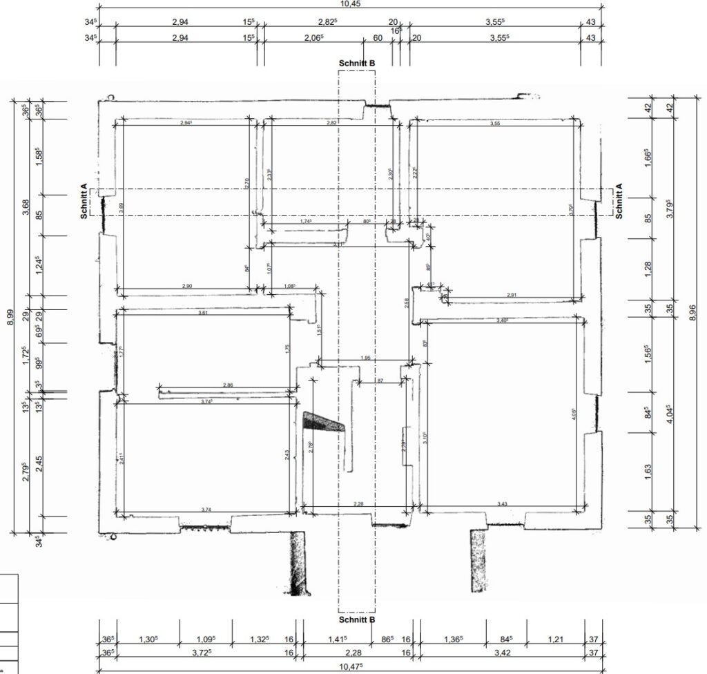
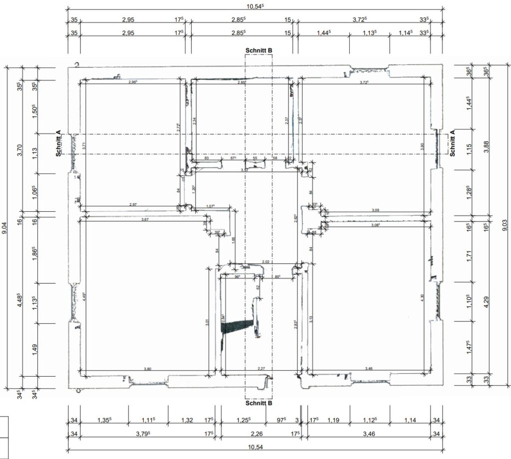
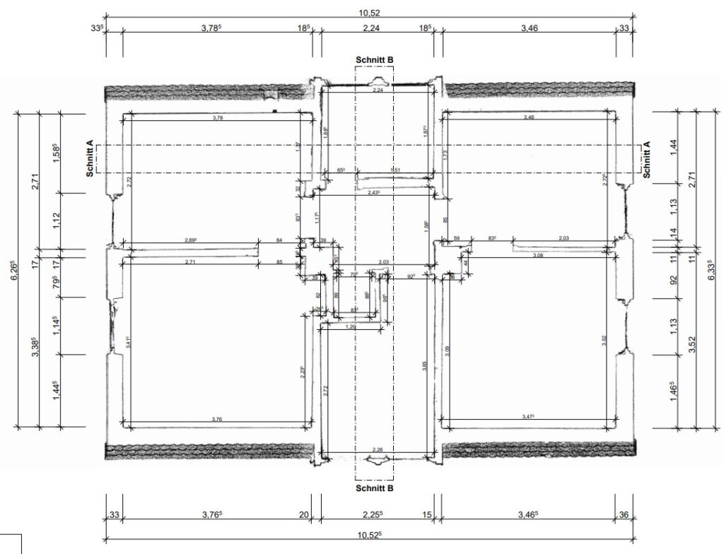
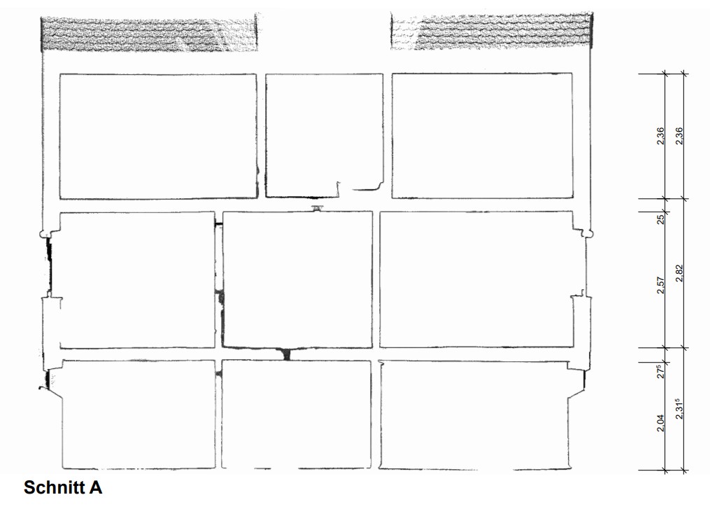
Ziel war es, eine neue Methodik zur Planerstellung zu testen. Dabei kamen sogenannte Orthopläne zum Einsatz – eine innovative Technik, die besonders bei leerstehenden Gebäuden ihre Stärken ausspielt. Grundlage bildet eine Punktwolke, aus der ein beliebiger Schnitt gewählt wird. Zu diesem Schnitt wird ein orthogonales Bild erzeugt, das als präzise und realitätsnahe Grundlage für Grundrisse oder Gebäudeschnitte dient.
Diese Orthopläne können als PNG-Dateien in jede gängige CAD-Software importiert, direkt bemaßt und für weitere Planungen überarbeitet oder überzeichnet werden. Auch Ansichten lassen sich auf diese Weise als maßstabsgetreue orthogonale Darstellungen erzeugen – näher an der Realität geht es kaum.
Ein entscheidender Vorteil dieser Methode liegt im Verzicht auf aufwendiges CAD-Zeichnen. Dadurch verkürzt sich die Bearbeitungszeit erheblich: Der Auftraggeber erhielt sämtliche Pläne noch am selben Tag. Gleichzeitig lassen sich die Kosten deutlich reduzieren.
Dieses Projekt zeigt eindrucksvoll, dass moderne digitale Methoden eine ebenso zuverlässige wie effiziente Alternative zu klassischen CAD-Plänen darstellen.











