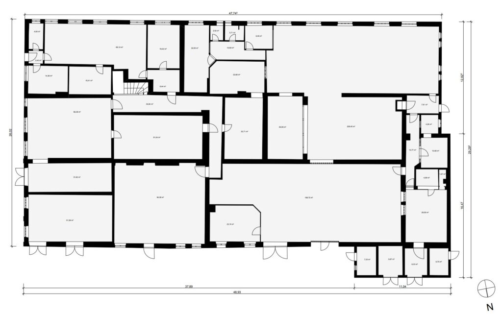
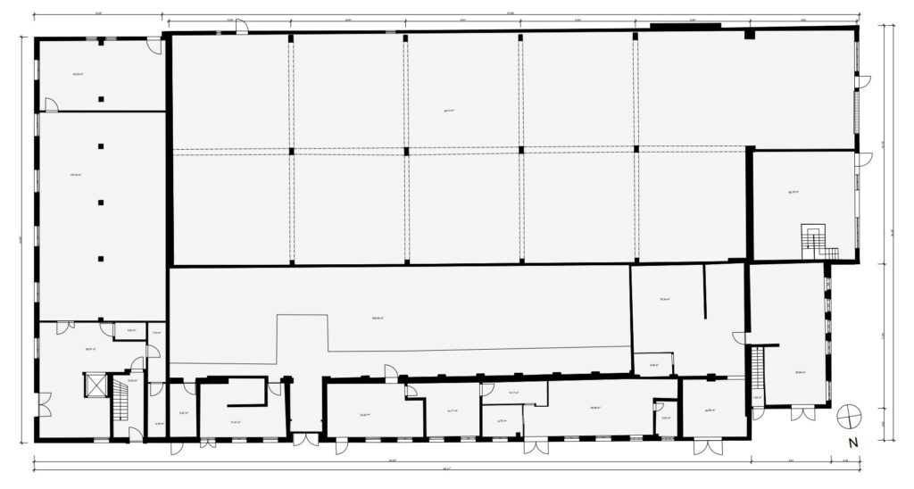
Lagerhallen & Werkstätten
Im Rahmen eines Projekts im Martini Park wurden zwei Lagerhallen Werkstätten vollständig digital vermessen. Für die Objekte lagen keine aktuellen oder vollständigen Grundrisse mehr vor, sodass eine neue Planungsgrundlage für die brandschutztechnische Bewertung, Rettungswege sowie ein Brandschutzkonzept erstellt werden musste.
In nur 11 Stunden wurde eine Gesamtfläche von ca. 3.250 m² erfasst. Dabei kamen moderne 3D-Aufmaßmethoden zum Einsatz, um eine schnelle und zugleich belastbare Datengrundlage zu schaffen.
Im Zuge der Bestandsaufnahme zeigte sich, dass in den Werkstattbereichen im Laufe der Zeit bauliche Veränderungen durch Nutzer vorgenommen wurden – insbesondere wurden zusätzliche Zwischenwände ohne Dokumentation eingezogen. Die vorhandenen, sehr alten Bestandspläne stimmten daher nicht mehr mit der tatsächlichen Situation überein.
Das Ergebnis ist ein vollständiges, aktuelles Aufmaß als Grundlage zur Planung für ein Brandschutzkonzept.



